Fenster schließen


Lage des zweiten Aufzuges auf der Südseite des Aegidientorplatzes



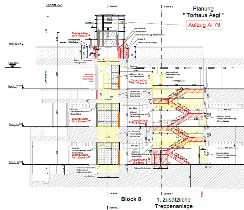
Querschnitt des neuen Fahrstuhlschachtes auf der Südseite



Neues Treppenhaus auf der Nordseite der Station

© 2020 infra Infrastrukturgesellschaft Region Hannover GmbH

Fenster schließen